-
This time it's not just a spec home - this is going to be my new casa.
Check out the plot map
I'm extending the garage to a 30' x 32' so that it can fit my boat. We're also rearranging the kitchen some, putting double doors at the entry to the master bedroom, changing the shower design in the master bathroom, among other things. The price to have an architect draw it was just about the same as ordering these stock plans from houseplans.com
We'll be finishing the basement as well so total square footage will be around 4,250.
I just felt inclined to share because I'm excited (and nervous) about it. What do you guys think?
Proud founder of YGG -
I think it's going to be one hell of a house! Hope it all goes well for ya!
It's sensible to get the plans drawn up by an architect rather than buying the generic plans, that way you get to add your own bit of personality to the house.
Plus whilst that is happening, you can be drawing up plans for the party :)
-
Eric,
That's fantastic man!
Do you have any updated news on the housing development project?
-
Posted By: Jason G
Eric,
That's fantastic man!
Do you have any updated news on the housing development project?
Currently working with the engineer to try and develop a good road system. We're in talks with the owner of the neighboring property to try and acquire another 5 acres of his land.
What we're running into is the grade of the hill is just a tad too steep on our property alone and it's causing us to either build very few lots or build cost prohibitive retaining walls to support the road & homes. If we can snatch his property up, or at least a little of it, we can engineer the roads in such a way that eliminates that problem. It's a pretty slow process...lots of hurrying up to wait. We're going along as best we can though.
Proud founder of YGG -
Gorgeous house! I love the symmetry of the windows upstairs. Congrats on the huge upgrade.
But where are you going to put the helipad?
Proud Partner of YGG -
Posted By: Travis
Gorgeous house! I love the symmetry of the windows upstairs. Congrats on the huge upgrade.
But where are you going to put the helipad?
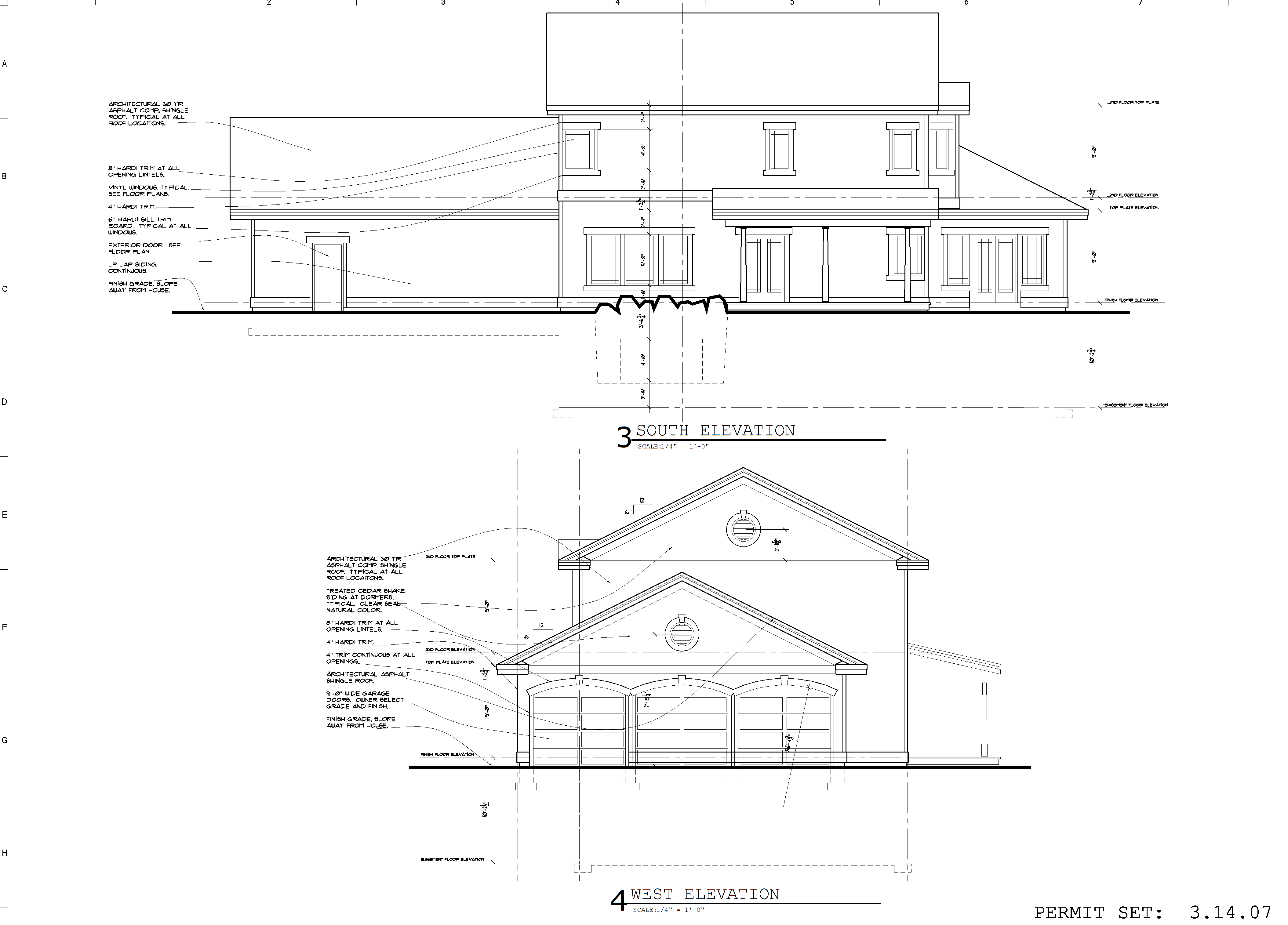
It's not the style of house I was originally planning but it really works on that lot which is shaped a bit awkward. I love the street frontage we get (it's like 125' of street footage). It's a classic design that, in my opinion, is rather timeless.
We're also bumping the ceiling height on the main & second floors from 8' to 10' to give it that extra openness that's really awe-inspiring.
There's room on the side yard for you to land the helo - when are you stopping by?
Proud founder of YGG -
According to our estimates, we should be all moved in by mid September.
Proud founder of YGG -
Damn, that's pretty quick.
Is it far from your current neighbourhood?
Proud Partner of YGG -
It's about a 5-10 minute drive from where I'm at now, depending on traffic. So...no, it's rather close.
My only gripe is that it's up on a prairie so the hill you have to climb is going to slaughter my MPG - but no biggie I guess. Long live Dubai!
Proud founder of YGG -
I just met with the architect tonight and talked about some changes to the house plan that we wanted to make.
We made an offer on the property and it was accepted at our offer price as long as we can close before April 1st. We had originally put April 15th on our offer because it takes 30-45 days for the loan to fund after they see the REAL blueprints.
Currently we only have the houseplans.com paperwork which isn't good enough for the bank so I have to wait until my architect is done drafting it up which I found out tonight is going to take til the 14th. That means I have a very narrow time frame to light a fire under the banks ass to fund or else I have to go full price on the property and close on my original date of the 15th of April.
You might ask: How am I going to push a 30 day closing in a 15(ish) day time period?
I may answer: Shit...I have no idea.
Cross your fingers for me :)
Proud founder of YGG -
Fingers and toes crossed for ya, I wish you the best of luck!
-
Good luck E. Does the process actually take 30 days, or is that the result of the bank's tardiness?
Proud Partner of YGG -
That's what they like to allow and commit to so they don't get themselves in trouble. I think I can push hard and get it done though.
If you're a sub-prime loan it takes longer because they have to dig a bit deeper and make sure you're going to be OK. Fortunately I don't suffer from that so we have a chance.
Proud founder of YGG -
We went 'house shopping' today to look at the market... wish I could win the lottery. Found a nice little cookie cutter house at the end of a cul-de-sac with a lot more space (yard and view wise) than the rest of the neighborhood.
At the very top end of our price range... once she has a job.
Sucks finding a house you really like when you can't buy it.
My Personal Finance Blog -
Did you guys see extreme home makeover? I don't know if I got the name right of the program but it's the one where they go and help a family that's had really bad luck and build a new house?\
The house was amazing. I love that Spanish home look.
Phoenix, AZ Foreign Language Lessons - Tutoring Indianpolis, IN web design -
I've heard of that show, haven't watched it yet. Found this on their website:

Was that the home Aaron?
Proud Partner of YGG -
Close, but the one they just did blows that away.
Phoenix, AZ Foreign Language Lessons - Tutoring Indianpolis, IN web design -
Is that style considered Spanish though? I don't know much about real estate styles and whatnot.
Proud Partner of YGG -
Yeah that's a Spanish style home.
Phoenix, AZ Foreign Language Lessons - Tutoring Indianpolis, IN web design -
Just an update: Working on the loan currently and trying to get as much processed as possible before the architect is done with his drawings. Loans are a bitch. Lenders are a bitch. It takes time and unfortunately I don't have much of it in order to close on the land at the price I want.
Some of you already know that I'm the credit-nazi - but I have to reiterate it again for all of you YGG's out there: PROTECT YOUR CREDIT. It's your biggest asset.
Being a small business owner means you spend your entire life trying to, how do I say this...disguise your true income to avoid heavy taxation. This means despite all the money you truly make, your tax returns look like last weeks trash warmed over. You'll never be able to do a huge full-doc loan with weak tax returns, and that means good credit is your ticket to ride. Good stated income loans start with credit scores over 720. So protect it with your life.
I'll keep bringing updates on this topic during the entire process. Whether you want to read it or not you should because you're probably going to learn a thing or to - I know I will. I'll be the YGG guinea pig and when you go to build your own house you can avoid the steaming piles I step in along the way.
Proud founder of YGG -
Can you put pictures of the interior when you're done?
Affordable Web Development - Outsource to Manila + PickyGuide -
Posted By: marxist
Can you put pictures of the interior when you're done?
Most definitively - but that won't be until September :)
Proud founder of YGG -
Geo tech study holes are being dug by our foundation guy tomorrow. Geo tech soil tests won't actually happen until next week but start crossing your fingers for me now. We're hoping for 2 things.
1. We don't want to hit basalt rock that's too hard to dig through (aka no basement aka no house)
2. We don't want a lot of water. It's on a prairie so you'd think being on a higher elevation it wouldn't matter. Yeah well Spokane doesn't work like that. Strange water around these parts.
Proud founder of YGG -
Good luck E.
I didn't notice any blueprints for your basement in that link you provided. What you plan to do with the basement, moisture permitting? lol
Proud Partner of YGG -
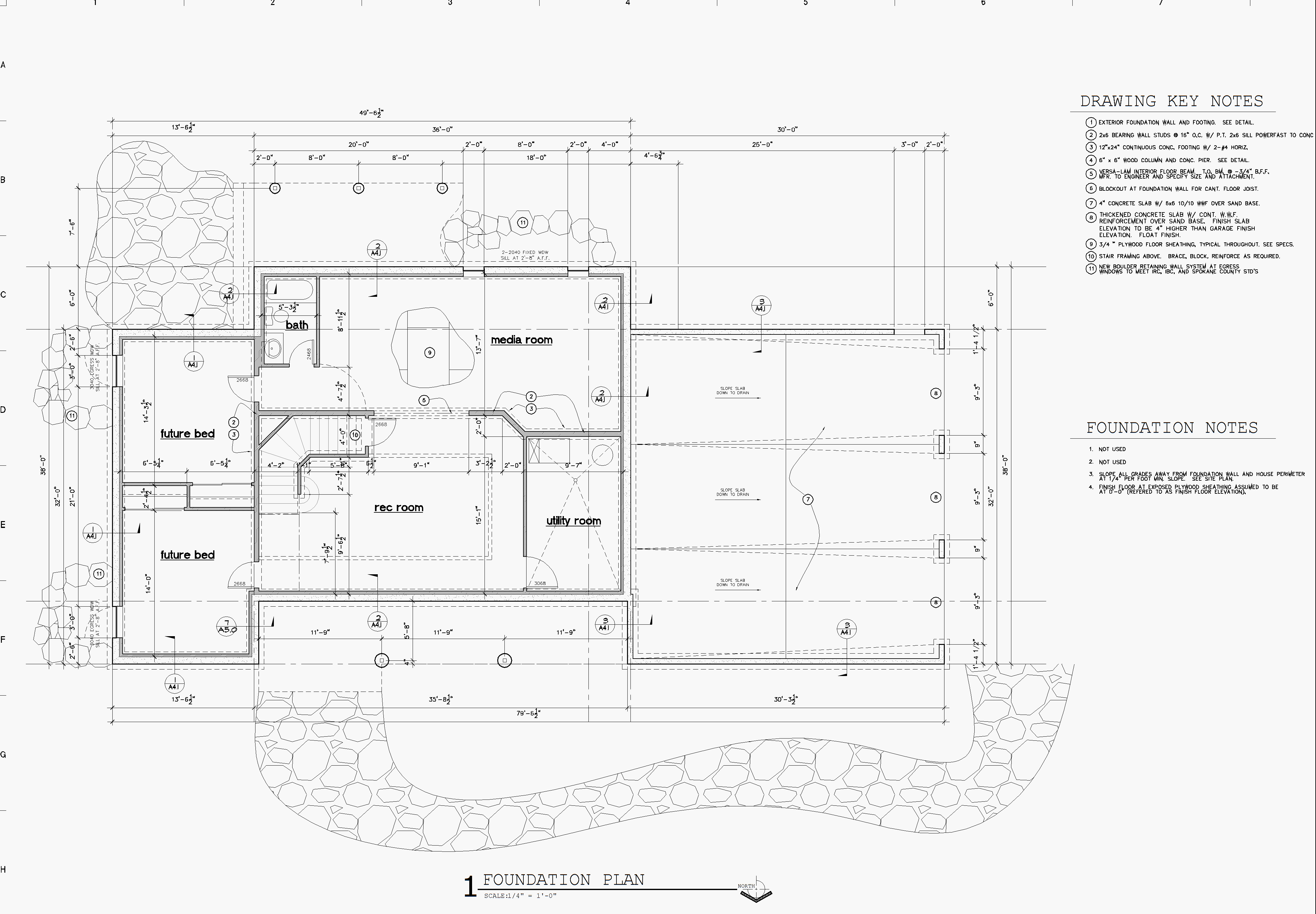
We're putting in 2 bedrooms and 1 full bath in the basement, plus a full bar & theater. Sooner or later there will be a pool table as well - that's a must.
Proud founder of YGG -
I have a meeting with my architect at 1PM at my office. He is coming with full prints plus electronic documents (CAD and PDF). I will toss them up here for you to see later this afternoon.
Damn I'm excited to see them!
Proud founder of YGG -
Meeting pushed to 2PM, he's got to be doing this on purpose.
And while we're somewhat on the topic of mortgage/credit/lending - here's a new blog post you might like.
Proud founder of YGG -
Breathtaking - I don't have PDF's yet but should have them this evening. As soon as I get 'em I'll post links.
Proud founder of YGG -
So is everything good to go?
Proud Partner of YGG -
Posted By: Travis
So is everything good to go?
Now that I got the plans, the appraisal will be done next Tuesday - that gives Countrywide 7-8 business days to get me a check. Holy shit.
Proud founder of YGG -
Get 'r done?
Can't wait to see it.
Eric, are you including any green building / home design techniques into your new home?
My Personal Finance Blog -
Posted By: KMulligan
Get 'r done?
Can't wait to see it.
Eric, are you including any green building / home design techniques into your new home?
I'm over extended on this place as it is, unfortunately green tech's are an added expense - educate me if you know otherwise and I'd be happy to try and incorporate it.
Proud founder of YGG -
There is all kinds of stuff you can do.
For starters
use Compact Fluorescent Bulbs. Cost more than regular bulbs, but use less energy and last much, much, much longer.invest in a low flow shower head that feels just like a regular shower head, just uses less water (and energy to heat that water): examples
TreeHugger's Series "How to Go Green"There are a lot of green types of insulation that work just as well or better than typical. Just make sure your house is REALLY sealed.
You can add overhangs to the windows that, when done correctly, keep summer heat from the sun out and angled heat from the sun in the winter in.
Try bamboo, it's an incredible substance. Use it for your hardwood floors, or even your sheets.
Look for quality EnergyStar appliances.
You can design your plumbing to make use of "gray water". Grey water is usable water, but not drinkable if not filtered. Example: You wash your hands with soap -- gray water goes down the drain. You can setup your plumbing so that your toilets use gray water, or even have it flow outside to be used on your grass.
You could add a system to catch rainwater to be used in a garden/outside plants/sprinkler system/yard/etc.
There is a simple system that uses a pump to pull hot water from your hot water heater much faster than just letting it run normally. Result: Almost immediate hot water in your shower/at the sink versus having to let it run 10-15 seconds.
Just my initial thoughts. :)
My Personal Finance Blog -
I'm definitely going to do the lightbulbs - I don't even consider that "green" - that's just common sense to me.
For the sprinkler system that uses rainwater, it sounds like a good idea but I don't know enough about it and can't imagine that it's as reliable as regular irrigation. I can't depend on that. My neighborhood covenants are very strict and if you don't have pristine yard care (aka no dead stuff) they hire someone to come make it look pristine and then send you a bill. Sounds bad, but it means the neighborhood will always look amazing. Maybe it'd be nice to supplement the regular irrigation system, but when you're spending $10,000 on sprinklers already, it's hard to bite another bullet.
Energy star appliances are damn near all that's sold these days so that's a go.
I'll look into the insulation and do some research - that sounds interesting.
And for the bamboo - I love that stuff. It's got such a great look I just wish I could find some hand scraped/distressed bamboo wood for my floors because I like that look the best. We're still debating the wood floors, and I'll keep that in mind.
The system that pulls hot water instantly sounds awesome - where can I get info on that?
Gray water - interesting concept - but what happens when you have your kids drinking out of the hose or playing in the sprinklers. Nay nay.
Proud founder of YGG -
BTW - has anyone seen this NanaWall ad above the comment box? It's freakin' amazing!!!
Proud founder of YGG -
Eric:
a tankless water heater company: http://www.titanheater.com/With greywater, you don't have to pump it out to the garden. Just use it for the toilets.
My Personal Finance Blog
How to green you water
Low Flow Toilets
Put in a waterless urinal for yourself to save on water
Point of use hot water heaters -
I'm going to talk to my plumbing subs about grey-water design. I just got done reading that site and it sounds like an amazing idea. It'd be fabulous to use the water from the shower somehow, even if it just went to a special tank that had it's own special hose attachment outside of the house for use whenever applicable.
The Aqus system that uses sink water for the toilet is an awesome idea too - and for only $200 each. $800 total and I could have my entire house outfitted with toilets that run off of used hand-washing water - WOW!
Thanks for all the links Kevin - I will look at these for my own place and potentially put them to use in our spec homes too!
Proud founder of YGG -
If you end up selling homes with them, I'll take a .5% commission :D
Glad the info is useful! One house a time.. we might actually make a difference.
My Personal Finance Blog -
I left a message for Tom Reynolds, the CEO of the company behind AQUS and am hoping to hear back from him about possibly becoming this area's representative, or at least getting the hook up on them so we can start putting them in all our houses.
I have a automotive client who is really into the green tech and actually runs a non-profit trying to raise community awareness about all the possibilities. I'm going to give him a call as well and see where he points me. He's got his own bio-diesel system at his house (more like his estate) and never buys an ounce of gasoline. He has green technology all over his house and is actually building some town homes that are going to be almost self contained because of their use of green tech. He'll definitely be able to give me some insight.
Proud founder of YGG -
Eric, let me know what you hear from AQUS. Do you think there is a market for non-new home build installs? Wonder if they have anything in Alabama...
My Personal Finance Blog -
Posted By: KMulligan
Eric, let me know what you hear from AQUS. Do you think there is a market for non-new home build installs? Wonder if they have anything in Alabama...
Very much so!
Proud founder of YGG -
How exciting! I just bought my first house last June and CAN'T WAIT to build my own one day. For now all I'm building is a new deck, but I don't think that post would be as interesting as this one :) Congrats man!
-
Posted By: Shawn81
How exciting! I just bought my first house last June and CAN'T WAIT to build my own one day. For now all I'm building is a new deck, but I don't think that post would be as interesting as this one :) Congrats man!
Thanks Shawn! Congrats on your new house too!
Proud founder of YGG -
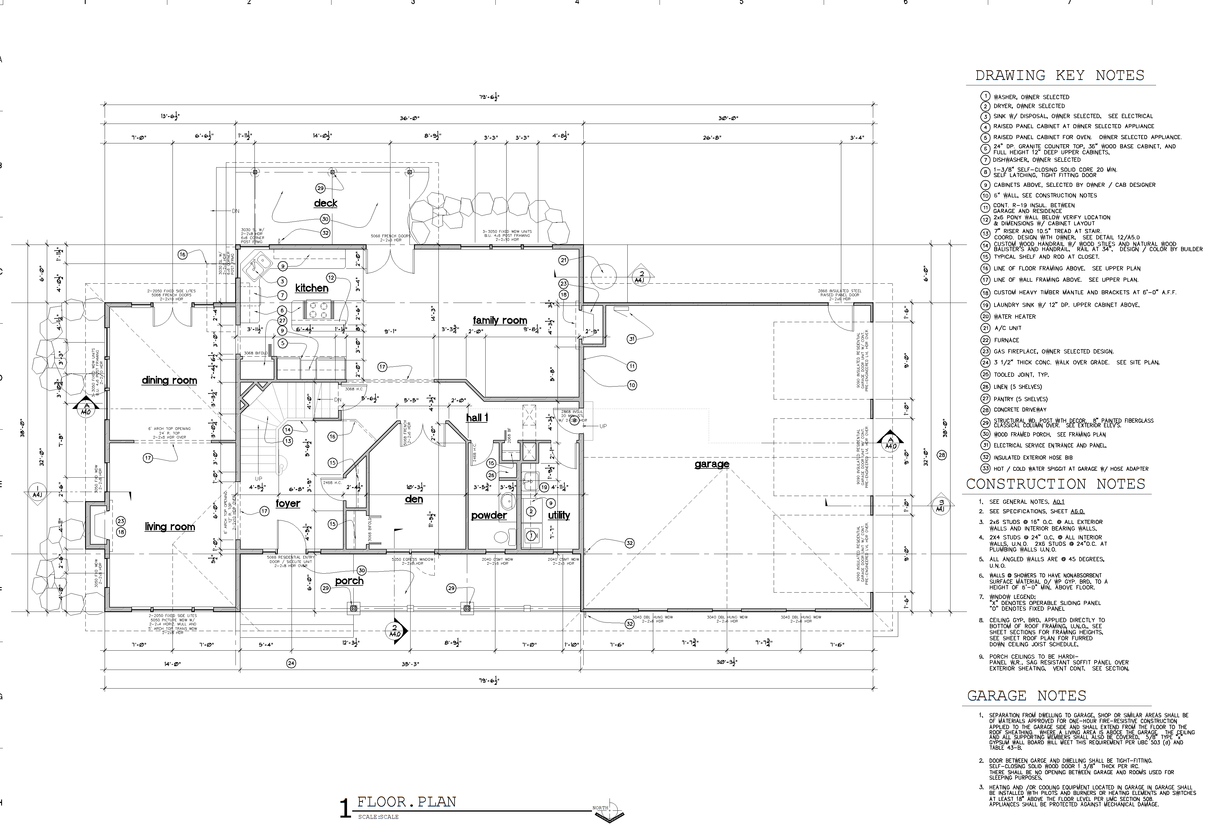
I got my floor plans in electronic format now - except he forgot to send me the basement which I'll post as soon as he gets it to me. They're fairly large so hopefully it's not a pain in the rear for you to view them.
Like I said, the basement is the missing link and I'll post it soon (update, here's the basement plan). One change happening to note is that the linen closet on the upper floor is not going to be built. Instead we're going to take out the back wall of that linen closet and just extend the master's walk-in closet to include the would-be linen closet. It just wasn't big enough and we have closets all over the place, we figured it'd just get cluttered with crap.
The thing in the master bedroom that would be at the foot of the bed is just built in cabinets and shelving that a nice flat panel will sit on.
I'd love your feedback. What you like, what you don't like, what changes you'd make.
Proud founder of YGG -
NIce! I love the little sitting area in the master suite, and the nice master bathroom with the walk-in. I live in a small condo (more a box, actually). I don't have a sitting area to have coffee in nor a walk-in.
WOW Eric :) I really envy you *turns green*
Do you have kids? Did you plan this house with your kids/future kids in mind? Seems like a nice home to raise a nice family
Affordable Web Development - Outsource to Manila + PickyGuide -
That's one of the biggest reasons for the big move - just planning ahead. We don't have kids yet but we plan on having a couple in the coming years. I'm assuming the first will come along in 2008. If my wife had her way it'd be here already :)
Proud founder of YGG -
Well, if you act now your wife may throw in a kid right before Christmas. Hurry though, time is limited. This offer is only available for two more weeks, or else it's almost physically impossible to deliver the package until 2008.
:)
Proud Partner of YGG -
LMAO - TRAVIS
-
Here's the basement plan
Proud founder of YGG -
Thanks for the feedback fella's :)
Proud founder of YGG -
I know we're talking about saving water and all...but how is one supposed to say no to WaterTiles?!

That looks heavenly...
Proud founder of YGG -
Great time for the mortgage industry to collapse. Just my luck!
Thank the Lord for good credit.
Proud founder of YGG -
Florida real-estate agents are still taking a beating. Every freaking sub division you enter, I would estimate 10 house are up for sale.
-
go ahead and invest in a nice bathroom. it should cut your/your wife's spa trips by half :)
Affordable Web Development - Outsource to Manila + PickyGuide -
The tentative schedule is signing loan documents next Thursday and getting a 10% check to cover soft costs. They're digging the basement early next week.
After a long, hard, very stressful, very vodka-filled uphill battle for financing, we're finally off the the races.
Experience Tip: Don't work with brokers, work direct with the lender
Proud founder of YGG -
wow, this post was a great read. So inspiring to start saving/making money so I can get a house once I am done school.
Wes Bos - Graphics and Web Design -
Nice...I see it has a couple of guest rooms.
PERFECT. I'll fit right in. *snicker*
Congrats Eric!!!!
EntrepreneurGirls Business, from the female perspective -
Well...more like 4 guest rooms, bring your friends. haha...
Proud founder of YGG -
If that was my backyard, yeah - but my side yard is my backyard. There's 30-40' between the side of their house and the back of ours.
Proud founder of YGG -
The greenest grass in the world, and plenty of sheep to be ridden..............it's like a fantasy ranch. :)
Proud Partner of YGG -
Posted By: Travis
The greenest grass in the world, and plenty of sheep to be ridden..............it's like a fantasy ranch. :)
Proud Partner of YGG
You're a sick man Travis.
Just an update: The loan has officially been funded. It sure felt good to get reimbursed for all my upfront costs. Oh, and it feels pretty good to finally own the land I've been digging a hole in for the last week. *phew* - now I can get some sleep!
Proud founder of YGG -
Proud founder of YGG
-
Those be some nice footings there. ;)
Proud Partner of YGG -
Where did you say you lived again? YGG BBQ OMG LOL BRB
Wes Bos - Graphics and Web Design -
Spokane, WA. You're all invited...except at this point I have to recommend you wear trashy clothes and your throw-away shoes, it's sorta muddy.
Proud founder of YGG -
Very nice Eric! Let me know when you have time to go look at some stone, I told Jeff that I would lend a hand with it!
-
Sweetness. Where do you go to look at it?
Proud founder of YGG -
Can't wait to see this thing go up. Pretty exciting.
My Personal Finance Blog -
Framing starts next Tuesday - thats when it REALLY happens fast.
So far everything has gone over budget - but I guess that's the way it goes, right? Especially when its your own house, you never cut corners. It's been hard to resist the "ah hell just do it" attitude when asked to make cost-saving or cost-slaughtering decisions.
Proud founder of YGG -
I added some new pics too. There's a few of the new neighbors that eat tall grass, and a few of the big ass boom truck and the concrete pouring process.
Proud founder of YGG -
Awesome. Interesting neighbors :)
My Personal Finance Blog -
Progress is being made. This thing was still just a big concrete hole until Memorial day when they started framing. These pics were taken a few days ago. Do these guys work fast or what?

Still 32' of garage off to that right side that needs to be framed. They're pouring the garage slab on Monday so that should happen by the end of the week (crossing fingers).I have a few more pics recently uploaded here.
Proud founder of YGG -
Looking good. Quick question -- Windsor Enterprises -- your company or weird coincidence?
My Personal Finance Blog -
My company (family biz) - that would have been a VERY weird coincidence though.
Proud founder of YGG -
That's what I thought. I looked at the webpage and it didn't list Eric so... just checking. Nothing like family building your house!
My Personal Finance Blog -
Well I used to be on there, but when I went to get my mortgage it was some weird conflict of interest when they saw me listed as one of the headliners so I had to strip the site of any info pertaining to me and just haven't gotten around to putting it back up.
You're such a sleuth!
Proud founder of YGG -
Ran into some rather big hitches yesterday. For everyone thinking this is an easy process, I assure you it's not.
Proud founder of YGG -
New pics towards the top of the gallery updated yesterday.
That LP TechShield supposedly can save up to 15% of your heating/ac power consumption. It blocks heat from coming in during the summer and blocks it from leaving in the winter. It's expensive, about 35-40% more expensive than normal plywood sheeting. It's a touch of green just for you Kevin :)
Proud founder of YGG -
BTW - what do you guys think of crown molding accent lighting like this...

I think the technical term is "cove lighting"
Proud founder of YGG -
That adds a nice ambient lighting to the house. I really like it if used well!
Impacto Blog - Fresh Opinions -
Oooooh me likes! I think it does a nice job of emphasising your high ceiling especially from the ground floor. Gives a nice sense of space and very chic.
Blogtrepreneur.com - Entrepreneur Blog -
I'm trying to find the proper lighting for it. There are quite a few different options, none of which are very inexpensive (of course). Hopefully I can get the bulk/contractor hook up and make it feasible.
Proud founder of YGG -
Holla on the green materials! Nice!
My Personal Finance Blog -
Here's some info on it for you Kevin, it's pretty neat stuff. Check out the savings calculator. It estimates in 88 degree weather I will save around 17% on my monthly energy bill.
I was up at the house yesterday and we went to flip over one of the sheets so that the techshield side wasn't showing (you never know who wants to steal your primo stuff off the job site) and the sun hit the radiant barrier and reflected on me. I instantly broke a sweat, it's crazy stuff.
Proud founder of YGG -
Unfortunately our builder is an arse and we can't change shit like this. Plus I'm not ballin' out of control enough right now to pay for it :) I'll look into though.
My Personal Finance Blog -
Ouch baby, very ouch
Proud founder of YGG -
- CommentAuthorchris.pund
- CommentTimeJun 24th 2007
Looks pretty sweet. YGG open house party here we come baby!
Dorm Room Biz -
Appliances have been picked out and ordered:
Blue LED touch screen panel. It's a true touch too, no button membrane whatsoever. The way the blue LED's come on and brighten like HID headlamps is uber!'>
Proud founder of YGG -
36 inch BlueStar 22,000 BTU Cooktop w/Griddle

This thing is pure commercial grade - it has the strongest burner rating out of all cooktops/ranges on the market now. Yes that means even Viking and Wolf can't touch it. 22,000 BTU FTW. This is going to be a joy to use!
Proud founder of YGG -
This is the matching fridge to the double ovens. It has Blue LED around the buttons by the water dispenser as well, but it isn't touch panel. Very nice match, fabulous features.>
Proud founder of YGG -
Bosh Dishwasher (German Engineering in da house - literally)
We went with the Bosh because of it's features. They have an Electrolux Icon dishwasher but it's shitty like all other American dishwashers. You'd have to read about it to understand what I'm talking about, but this thing is just awesome!
NOTE: Something was buggy and not letting me post all the links/pics in one post.
Proud founder of YGG -
We got a Bosch too! That looks like the exact one we got... maybe a slightly lower one. We bought it for the water savings. Make sure you clean the manual trap once a week or it will smell like rotting food. It doesn't have a heating element which makes me nervous. Hopefully I won't be drying dishes!
My Personal Finance Blog -
From the research I've done it's just as efficient with cleaning as a regular dishwasher. Do you know about the way it releases steam? Most dishwashers release steam either under the dishwasher or above it, right under your counter top. If you have granite tops it can really do some damage because of the soap left in the steam.
The Bosh sucks in cold air through the side which causes condensation out of the steam, which drips down through the bottom. It's all enclosed. No rotting cabinet wood or discolored granite. Frickin' awesome stuff! The stainless steel interior is also very nice.
Proud founder of YGG -
- CommentAuthorchris.pund
- CommentTimeJul 10th 2007
Who knew that dishwashers were so complex!
Dorm Room Biz -
Posted By: Eric
From the research I've done it's just as efficient with cleaning as a regular dishwasher. Do you know about the way it releases steam? Most dishwashers release steam either under the dishwasher or above it, right under your counter top. If you have granite tops it can really do some damage because of the soap left in the steam.
The Bosh sucks in cold air through the side which causes condensation out of the steam, which drips down through the bottom. It's all enclosed. No rotting cabinet wood or discolored granite. Frickin' awesome stuff! The stainless steel interior is also very nice.
Yea I read the condensation part and the stainless steel tub. Very excited. Just hope everything is dry! I guess we'll both find out, eh?
My Personal Finance Blog







PPC Management
Hell Yeah Dude!
Reverse Funnel System for Beach Bums



